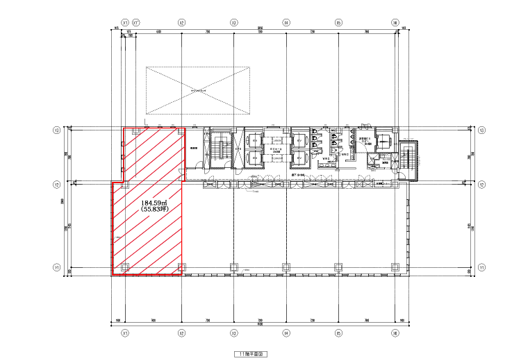
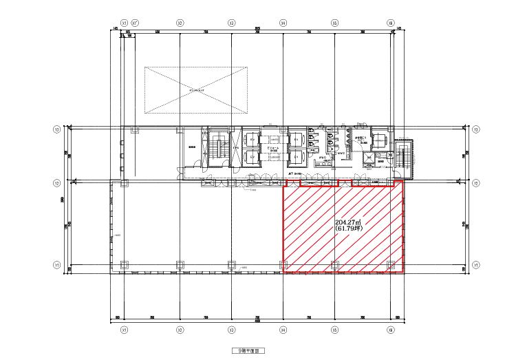
あいおいニッセイ同和損保 仙台ビル

| 所在地 | 宮城県仙台市青葉区花京院1-1-10 | ||
|---|---|---|---|
| 竣 工 | 2008年4月 | ||
| 構 造 | SRC造 | 規 模 | 地上14階、地下1階 |
| 延床面積 | 3,877.18坪 | ||
| 空調設備 | 個別空調 | 床仕上げ | OAフロア |
|---|---|---|---|
| 天井高 | 2,80m | 駐車場 | 空有 |
※画像をクリックすると拡大します。




| 所在地 | 宮城県仙台市青葉区花京院1-1-10 | ||
|---|---|---|---|
| 竣 工 | 2008年4月 | ||
| 構 造 | SRC造 | 規 模 | 地上14階、地下1階 |
| 延床面積 | 3,877.18坪 | ||
| 空調設備 | 個別空調 | 床仕上げ | OAフロア |
|---|---|---|---|
| 天井高 | 2,80m | 駐車場 | 空有 |
※画像をクリックすると拡大します。

