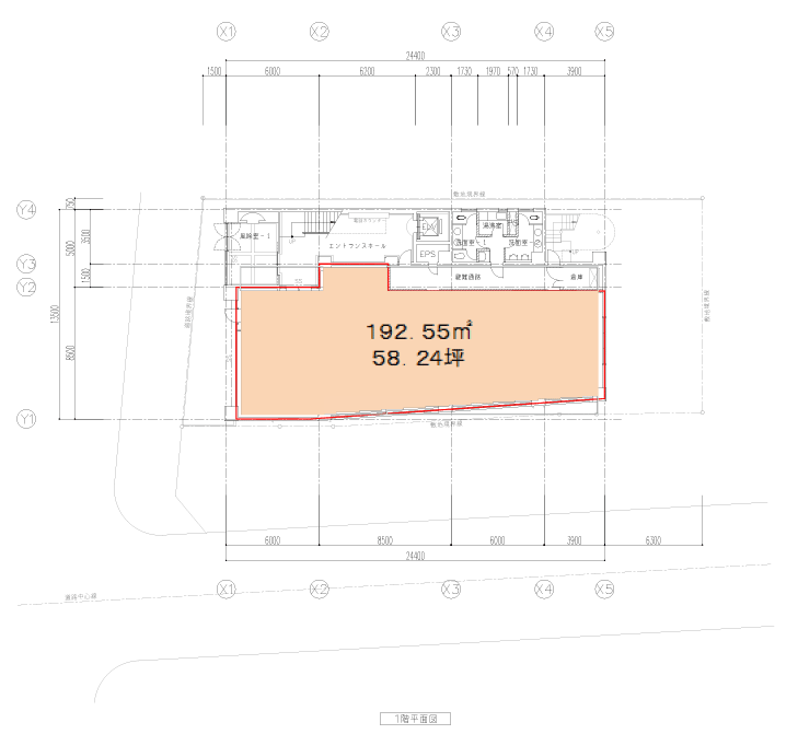
あいおいニッセイ同和損保 豊橋ビル

| 所在地 | 愛知県豊橋市大手町92 | ||
|---|---|---|---|
| 施 工 | 1988年7月 | ||
| 構 造 | SRC造 | 規 模 | 地上7階建 |
| 延床面積 | 584.27坪 | ||
| 空調設備 | 個別空調 | 床仕上げ | OAフロア |
|---|---|---|---|
| 天井高 | 2,600mm | 駐車場 | 有 |
※画像をクリックすると拡大します。




| 所在地 | 愛知県豊橋市大手町92 | ||
|---|---|---|---|
| 施 工 | 1988年7月 | ||
| 構 造 | SRC造 | 規 模 | 地上7階建 |
| 延床面積 | 584.27坪 | ||
| 空調設備 | 個別空調 | 床仕上げ | OAフロア |
|---|---|---|---|
| 天井高 | 2,600mm | 駐車場 | 有 |
※画像をクリックすると拡大します。

